Send an email with a link to
11 Main Street , Windermere, FL 34786.
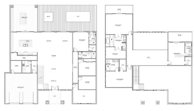
Under Construction. Brand New Construction in the Heart of Downtown Windermere - Currently Under Construction!Walking distance to downtown events, the farmers market, food trucks, and the local brewery. Historic Windermere is golf cart friendly and known for its outdoor lifestyle with parks, recreation areas, tennis courts, public docks, and swimming areas.Bring your boat! This waterfront homesite sits on Fischer Canal with access to the 13 lakes of the spring-fed Butler Chain of Lakes. A new seawall and dock provide space for your boat and jet ski - and no HOA fees!This custom home is currently under construction with an expected completion date of late Summer 2026. The thoughtfully designed two-story residence will offer approximately 4,700 square feet, featuring expansive open living spaces, soaring ceilings, and a modern architectural design. The floor plan includes a spacious great room, designer kitchen, and seamless indoor-outdoor living opening to the lanai and pool area overlooking the canal.The layout features a luxurious first-floor primary suite, additional bedrooms and loft space upstairs, private balcony areas, and a two-car garage, creating a perfect blend of comfort, style, and waterfront living in one of Central Florida's most sought-after lakefront communities.
MLS ID: O6387596
Shown By
Contact an agent to learn more about
11 Main Street , Windermere, FL 34786.
Estimated Payment
$ 25,234.98 per month $22,597.98 Principal & Interest $682.83 Property Tax $1,954.17 Homeowner's Insurance